Oliemolenwal 19 02, Tiel
Vraagprijs: € 389.000,- k.k.
Lees en bekijk hieronder
alles over deze woning!
Omschrijving
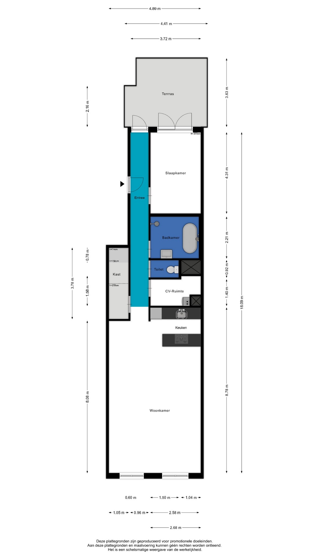
Luxueus, licht, modern en duurzaam! OPEN HUIS: We nodigen u voor de start van de verkoop graag uit voor het Open huis van Oliemolenwal 19 02. Vrijdag 6 februari 2026 bent u welkom tussen 16:00 en 18:00 uur. Wij ontvangen graag een aanmelding vooraf! Aan de Oliemolenwal in het centrum van Tiel biedt Dolron Rivierenland Makelaars drie hoogwaardige stadsappartementen en een maisonnette aan in een recentelijk geheel gerenoveerd pand waarin comfort, luxe, stijl en functionaliteit op een schitterende wijze samen komen. Met recht kan gesproken worden van instapklare appartementen waar bij binnenkomst de achterliggende gedachte naar voren komt. Binnen het plan is gekozen voor luxe materialen en hoogwaardige installaties en een kant en klaar top afwerking waar u na plaatsing van uw meubels meteen kan genieten. Het complex is volledig ontdaan van de oorspronkelijke invulling en opnieuw opgebouwd waarin met betrekking tot toekomstbestendigheid schitterende stappen zijn gezet middels onder andere hoogwaardig kozijnwerk met HR++ beglazing, volledige isolatie, vloerverwarming en eigen zonnepanelen. Dit alles resulteert in een energielabel A++! Luxe vindt u terug in een zeer complete afwerkingsniveau waarin keuzes zijn gemaakt die allemaal terug zijn te leiden naar de bewuste keuze om in dit project alle comfort te verwerken wat het jaar 2026 vraagt. De keukenopstelling is compleet voorzien van A-merk apparatuur, sanitair is zeer compleet afgewerkt inclusief strak tegelwerk wat in een groot formaat is gelegd. De appartementen zijn volledig voorzien van vloerverwarming met een eikenlook vloer in visgraatmotief aangebracht. Tevens treft u hier strak stucwerk aan op zowel wanden alsook plafonds en houten binnenkozijnen met stompe deuren. Het geheel wordt gecompleteerd door een lichtplan door de gehele woning. Elke appartement beschikt over een eigen buitenruimte belegd met hardhouten vlonders. De ligging aan de Oliemolenwal in het hart van het centrum zorgt ervoor dat u alle voorzieningen van de binnenstad zoals winkels, horeca en theater direct om de hoek aantreft. Indeling: Begane grond: Entree, hal met meterkasten en trapopgang Eerste verdieping: Entree tot de ruime hal met doorgang naar de living. Deze ruimte valt op meteen op door de ruime opzet die meerdere indelingsmogelijkheden biedt. Hoge ramen aan de zijde van de Waterstraat zorgen mede voor het ruimtelijke gevoel. De keukenopstelling is compleet voorzien van een kookeiland met BORA-kookplaat. Uiteraard ontbreken een combi-oven, vaatwasser en koelkast niet. De slaapkamer is ruim van opzet en geeft evenals de hal rechtstreeks toegang tot het dakterras van circa 15 vierkante meter. De badkamer is fraai afgewerkt met een riant formaat tegel in een moderne warme kleurstelling. Deze ruimte is afgewerkt met een inloopdouche, vrijstaand ligbad en breed wastafelmeubel met verlichte spiegel. Uiteraard ontbreekt een separate toiletruimte in dezelfde sfeer niet. In een separate ruimte treft u de c.v. opstelplaats en witgoedaansluitingen aan. Dit appartement beschikt tevens over een ruime bergkast te betreden vanuit de hal. Bijzonderheden: - Schitterend stadsappartement met zeer luxe feel en uitstraling; - Toplocatie in de binnenstad; - Instapklaar en geheel gerenoveerd; - Woonoppervlakte circa 80 vierkante meter; - Hoogwaardige materialen; - Strakke wand- en plafondafwerkingen compleet met lichtplan; - Ruim dakterras; - Luxe keuken en sanitair; - Energielabel A++ met eigen zonnepanelen; - Oplevering in overleg; - Notariskeuze voorbehouden aan verkoper.
Plattegrond
Locatie
Good to know
Alles wat je
moet weten!
Het kopen van een woning is spannend én bijzonder, maar er komt ook veel bij kijken. We zetten de belangrijkste stappen en begrippen voor je op een rij, zodat je goed voorbereid aan jouw zoektocht begint.
-
Wat is kosten koper?
Bij de meeste bestaande woningen betaal je 'kosten koper'. Dit betekent dat de koper de bijkomende kosten betaalt, zoals:
-
Overdrachtsbelasting (meestal 2%)
-
Notariskosten voor de leveringsakte
-
Kadasterkosten
Deze kosten komen dus bovenop de aankoopprijs van de woning.
-
-
Hypotheek regelen
Voordat je op huizenjacht gaat, is het verstandig om te weten hoeveel je kunt lenen. Een hypotheekadviseur of bank kijkt naar je inkomen, schulden en maandlasten. Zo weet je precies wat je budget is. Zodra je een woning op het oog hebt, kun je een hypotheekofferte aanvragen.
-
Aankoopmakelaar
Een aankoopmakelaar is jouw expert tijdens het kopen van een huis. Die helpt je bij het vinden van geschikte woningen, het voeren van onderhandelingen en het controleren van juridische documenten. Zo voorkom je verrassingen én betaal je niet te veel.
-
Taxatie
Voor het afsluiten van een hypotheek heb je vaak een gevalideerde taxatie nodig. Een onafhankelijke taxateur stelt een rapport op waarin de marktwaarde van de woning staat. Dit rapport is verplicht voor de meeste geldverstrekkers.
-
Notaris
De notaris stelt de leveringsakte (eigendomsoverdracht) en hypotheekakte op. Hier teken je officieel voor de woning. De notaris zorgt ervoor dat alles correct wordt vastgelegd en geregistreerd bij het Kadaster.