Maasdijk 23, Heerewaarden
Vraagprijs: € 695.000,- k.k.
Lees en bekijk hieronder
alles over deze woning!
Omschrijving
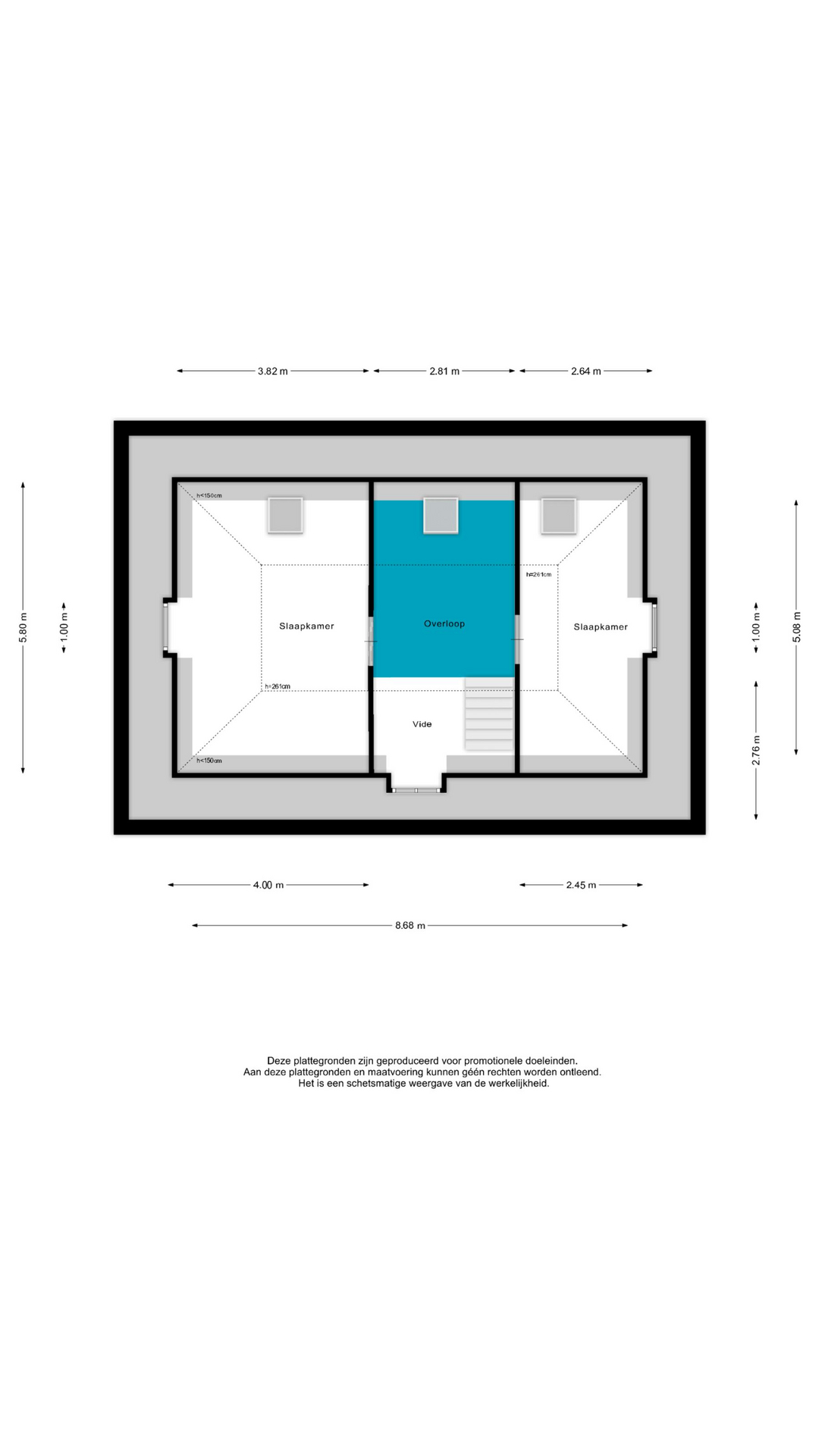
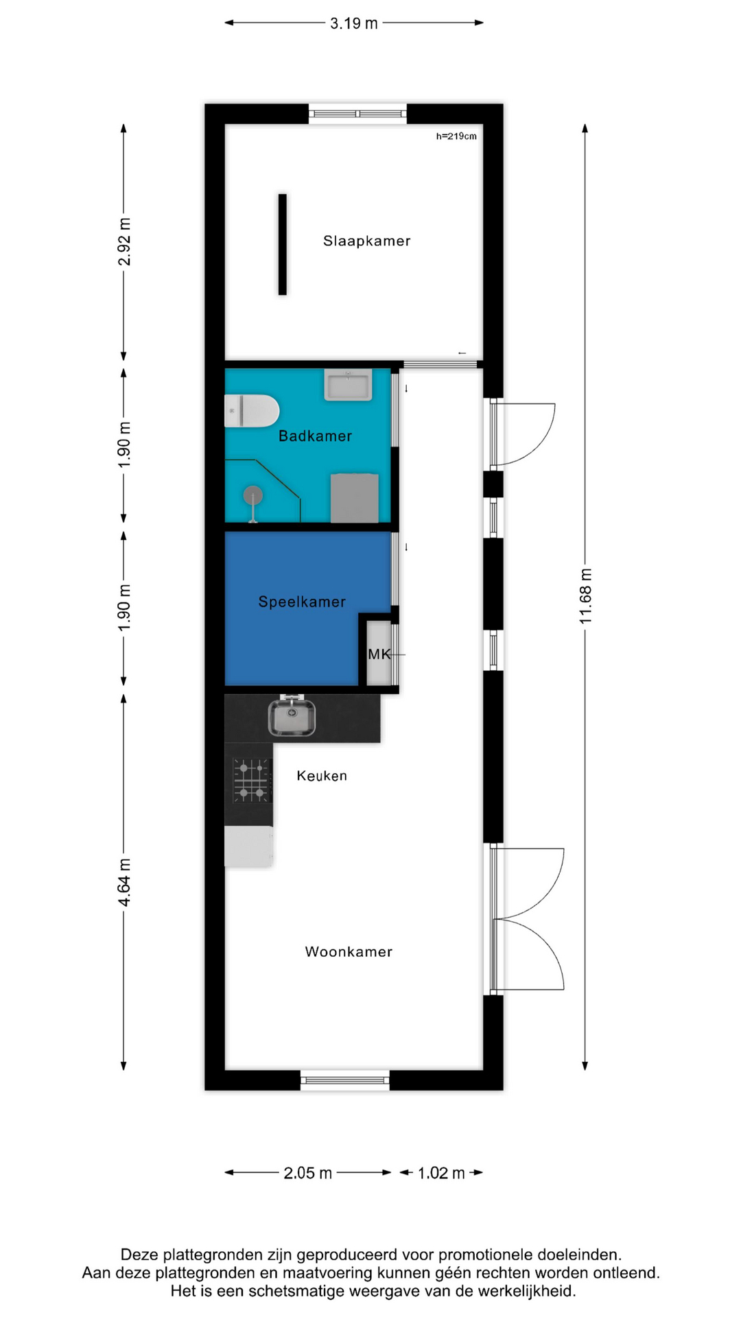
Vrijstaand! Gelijkvloerse voorzieningen! Zonnepanelen! Energielabel A+++! Bijgebouw! Zomaar vijf kenmerken van deze vrijstaande villa uit 2011 die fraai gelegen is aan de rand van Heerewaarden met de rivier de Maas op korte afstand gelegen. Maar er is nog veel meer! De woning biedt alle voorzieningen op de begane grond inclusief hoofdslaapkamer en badkamer, een zeer compleet afwerkingsniveau, zonnige tuin en een bijgebouw wat voor meerdere functies geschikt is. Er zijn 18 zonnepanelen aanwezig, een warmtepomp en een energielabel A+++. Helemaal klaar voor de toekomst dus! Mogen wij u uitnodigen voor een vrijblijvende bezichtiging in het Land van Maas en Waal? Centrale kan u niet in Nederland wonen met steden als Den Bosch, Oss en Nijmegen die uitstekend bereikbaar zijn. De ligging in de directe nabijheid van de Maas zorgt ervoor dat vele voorzieningen in de directe nabijheid gelegen zijn. Indeling: Begane grond: Entree, zeer ruime hal met schitterend hoogte effect, toiletruimte, meterkast en trapopgang naar eerste verdieping. Via de dubbele deuren betreedt u de living. De lichtinval zal u meteen opvallen in dit L-vormige vertrek. Ruim van opzet met meerdere indelingsmogelijkheden en een aansluitende keuken met kookeiland, voorzien van alle apparatuur. Via openslaande deuren betreedt u zowel de tuin alsook de zeer ruime serre. De hoofdslaapkamer is ruim van opzet en biedt u aansluitend de badkamer. Deze ruimte is voorzien van een grote inloopdouche met vloerdrain en hardglazen douchewand en dubbel wastafelmeubel. De bijkeuken completeert de begane grond. Eerste verdieping: De overloop geeft toegang tot de twee slaapkamers. Beide kamers beschikken over een dakkapel en velux dakraam. Bijgebouw: Direct naast de woning is een bijgebouw gelegen met een oppervlakte van circa 35 vierkante meter. Wonen en werken kan hier ideaal gecombineerd worden. Tuin: De tuin is ideaal (zuid) op de zon gesitueerd. Hier is het fantastisch toeven. Volop privacy! Ook zijn er twee bergingen aanwezig. Bijzonderheden: - Vrijstaande villa met alle voorzieningen gelijkvloers - Topplek aan de rand van het dorp!! - Gebouwd in 2011, energielabel A+++ - Verwarming middels een warmtepomp, gasloos! - Zeer compleet afwerkingsniveau - Drie uitstekende slaapkamers - Zeer grote serre - Ruime privacyrijke tuin - Oplevering in overleg
Plattegrond
Locatie
Good to know
Alles wat je
moet weten!
Het kopen van een woning is spannend én bijzonder, maar er komt ook veel bij kijken. We zetten de belangrijkste stappen en begrippen voor je op een rij, zodat je goed voorbereid aan jouw zoektocht begint.
-
Wat is kosten koper?
Bij de meeste bestaande woningen betaal je 'kosten koper'. Dit betekent dat de koper de bijkomende kosten betaalt, zoals:
-
Overdrachtsbelasting (meestal 2%)
-
Notariskosten voor de leveringsakte
-
Kadasterkosten
Deze kosten komen dus bovenop de aankoopprijs van de woning.
-
-
Hypotheek regelen
Voordat je op huizenjacht gaat, is het verstandig om te weten hoeveel je kunt lenen. Een hypotheekadviseur of bank kijkt naar je inkomen, schulden en maandlasten. Zo weet je precies wat je budget is. Zodra je een woning op het oog hebt, kun je een hypotheekofferte aanvragen.
-
Aankoopmakelaar
Een aankoopmakelaar is jouw expert tijdens het kopen van een huis. Die helpt je bij het vinden van geschikte woningen, het voeren van onderhandelingen en het controleren van juridische documenten. Zo voorkom je verrassingen én betaal je niet te veel.
-
Taxatie
Voor het afsluiten van een hypotheek heb je vaak een gevalideerde taxatie nodig. Een onafhankelijke taxateur stelt een rapport op waarin de marktwaarde van de woning staat. Dit rapport is verplicht voor de meeste geldverstrekkers.
-
Notaris
De notaris stelt de leveringsakte (eigendomsoverdracht) en hypotheekakte op. Hier teken je officieel voor de woning. De notaris zorgt ervoor dat alles correct wordt vastgelegd en geregistreerd bij het Kadaster.