Lijsterstraat 2, Tiel
Vraagprijs: € 396.000,- k.k.
Lees en bekijk hieronder
alles over deze woning!
Omschrijving
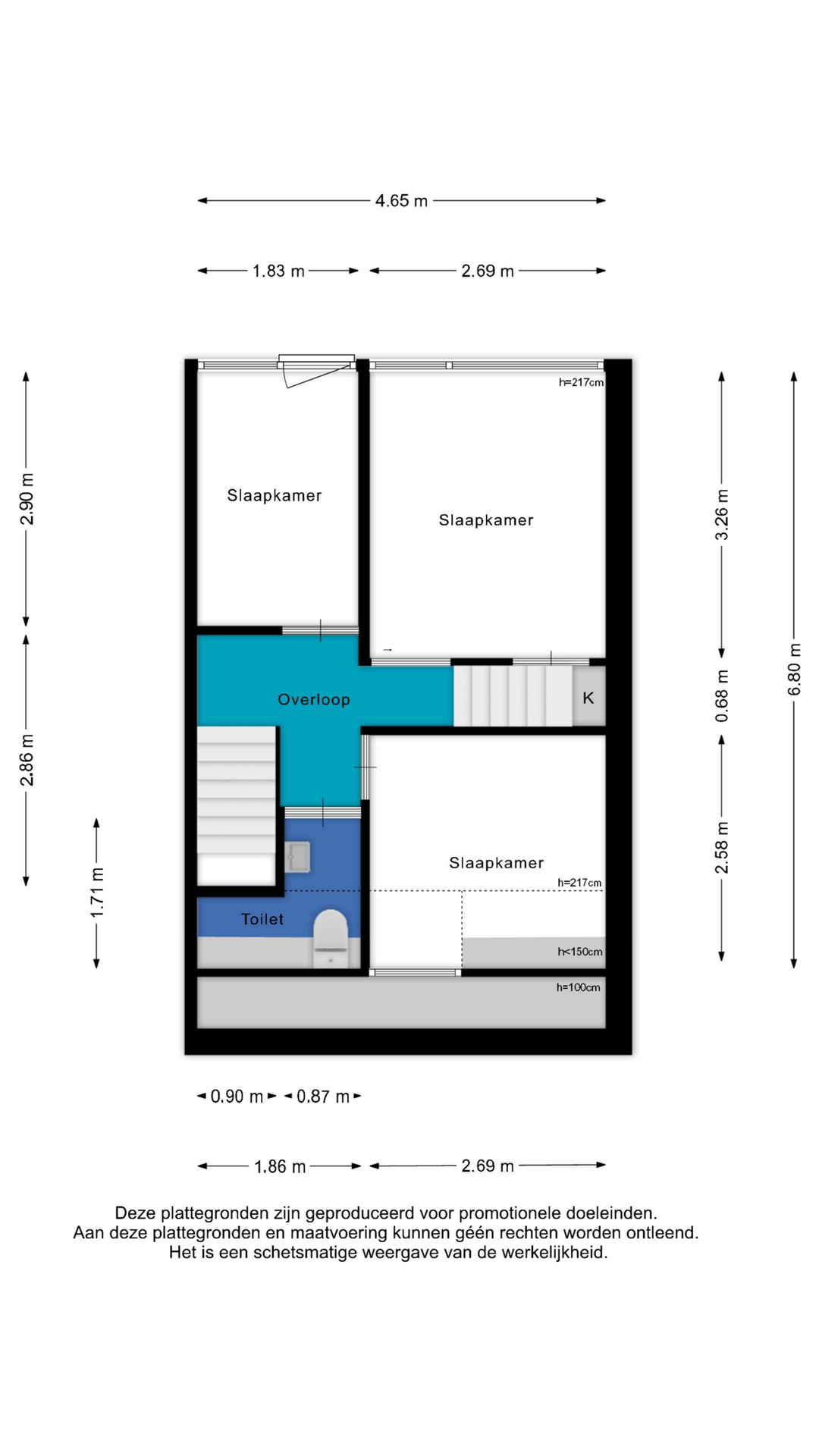
Ruime hoekwoning met diepe tuin en flinke garage nabij het centrum! Sfeervol en rustig gelegen, dat zijn de kenmerken van deze UITGEBOUWDE HOEKWONING MET VRIJSTAANDE GARAGE. De woning is gelegen op loopafstand van het gezellige stadscentrum van Tiel. Winkels, supermarkten, een basisschool en de prachtige groene uiterwaarden van de rivier de Waal zijn allen op loopafstand bereikbaar. Een ideale locatie aan de rand van de stad, terwijl je toch heerlijk vrij kunt wonen! De woning beschikt over een opvallend diepe achtertuin met veel privacy. Dankzij de gevarieerde beplanting en de mogelijkheid om zowel in de zon als in de schaduw een terras te creëren, is dit een heerlijke plek om te ontspannen. Aan de achterzijde van het perceel is een zeer royale stenen garage gerealiseerd; deze is vanaf de Nachtegaallaan via een gedeelde oprit met de buren bereikbaar. De garage biedt ruimschoots plaats aan een auto, met daarnaast meer dan voldoende ruimte voor het stallen van fietsen en/of tuingereedschap. Doordat de woning aan een doodlopende straat is gelegen, is dit een ideale woonomgeving voor kinderen. Voor treinreizigers is het NS-station ook binnen enkele (fiets)minuten bereikbaar. INDELING: Begane grond: Entree/hal met meterkast en trapopgang naar boven. De sfeervolle L-vormige woonkamer is voorzien van een fraaie parketvloer, glas-in-lood ramen en een hoog plafond met karakteristieke balken. Tevens is er toegang tot een goed bruikbare kelder die extra bergruimte biedt. Vanuit de woonkamer heeft u zicht op de straat aan de voorzijde, maar ook op de diepe achtertuin. De woning is aan de achterzijde uitgebouwd waardoor de oorspronkelijke woning aanzienlijk verruimd is. Aan de achterzijde van de woonkamer treft u de half open keuken, de bijkeuken en recentelijk gemoderniseerde badkamer met douche, wasmeubel en toilet. Vanuit het achtergelegen eetgedeelte is er middels openslaande deuren toegang tot het overkapte terras, dat de woning met de achtertuin verbindt. Eerste verdieping: Ook deze verdieping is middels recht opgetrokken wanden verruimd naar de prettige slaapverdieping die het nu is. Overloop met toegang tot drie slaapkamers en een tweede toilet. De volledige bovenverdieping is voorzien van een nette laminaatvloer. Tweede verdieping: Via een vaste trap te bereiken zolderverdieping. Hier is ruimte voor werk, hobby of bijv. in gebruik te nemen als extra logeerkamer. ALGEMEEN: * Uitgebouwde hoekwoning in charmante jaren '30 sfeer; * Rustig gelegen aan de rand van de stad; * Veel buitenruimte door de diepe achtertuin van bijna 23 meter! * Alle dagelijkse voorzieningen zijn op loopafstand gelegen; * De groene uiterwaarden van de Waal en de Tielse jachthaven liggen letterlijk om de hoek; * Vrijstaande stenen garage van maar liefst 29 m²; * Recentelijk voorzien van 6 zonnepanelen; ook aan de verbruikskosten is gedacht! * Sfeervolle kenmerken als glas-in-lood, open haard en hoge balkonplafonds; * Badkamer 3 jaar geleden vernieuwd; * Verwarming en warm water middels Cv-installatie (Nefit, 2021 eigendom); * Buitenschilderwerk: begane grond 2025, verdieping is van kunststof; * Energielabel D, nadien nog zonnepanelen geplaatst; * Bouwjaar: 1939; * Inhoud: 337 m³; * Woonoppervlakte: 88 m²; * Perceelsomvang: 289 m²; * Aanvaarding in overleg. Kortom een hele leuke woning met vele pluspunten, komt u langs om zelf te kijken?
Plattegrond
Locatie
Good to know
Alles wat je
moet weten!
Het kopen van een woning is spannend én bijzonder, maar er komt ook veel bij kijken. We zetten de belangrijkste stappen en begrippen voor je op een rij, zodat je goed voorbereid aan jouw zoektocht begint.
-
Wat is kosten koper?
Bij de meeste bestaande woningen betaal je 'kosten koper'. Dit betekent dat de koper de bijkomende kosten betaalt, zoals:
-
Overdrachtsbelasting (meestal 2%)
-
Notariskosten voor de leveringsakte
-
Kadasterkosten
Deze kosten komen dus bovenop de aankoopprijs van de woning.
-
-
Hypotheek regelen
Voordat je op huizenjacht gaat, is het verstandig om te weten hoeveel je kunt lenen. Een hypotheekadviseur of bank kijkt naar je inkomen, schulden en maandlasten. Zo weet je precies wat je budget is. Zodra je een woning op het oog hebt, kun je een hypotheekofferte aanvragen.
-
Aankoopmakelaar
Een aankoopmakelaar is jouw expert tijdens het kopen van een huis. Die helpt je bij het vinden van geschikte woningen, het voeren van onderhandelingen en het controleren van juridische documenten. Zo voorkom je verrassingen én betaal je niet te veel.
-
Taxatie
Voor het afsluiten van een hypotheek heb je vaak een gevalideerde taxatie nodig. Een onafhankelijke taxateur stelt een rapport op waarin de marktwaarde van de woning staat. Dit rapport is verplicht voor de meeste geldverstrekkers.
-
Notaris
De notaris stelt de leveringsakte (eigendomsoverdracht) en hypotheekakte op. Hier teken je officieel voor de woning. De notaris zorgt ervoor dat alles correct wordt vastgelegd en geregistreerd bij het Kadaster.