Kolblei 25, Tiel
Vraagprijs: € 460.000,- k.k.
Lees en bekijk hieronder
alles over deze woning!
Omschrijving
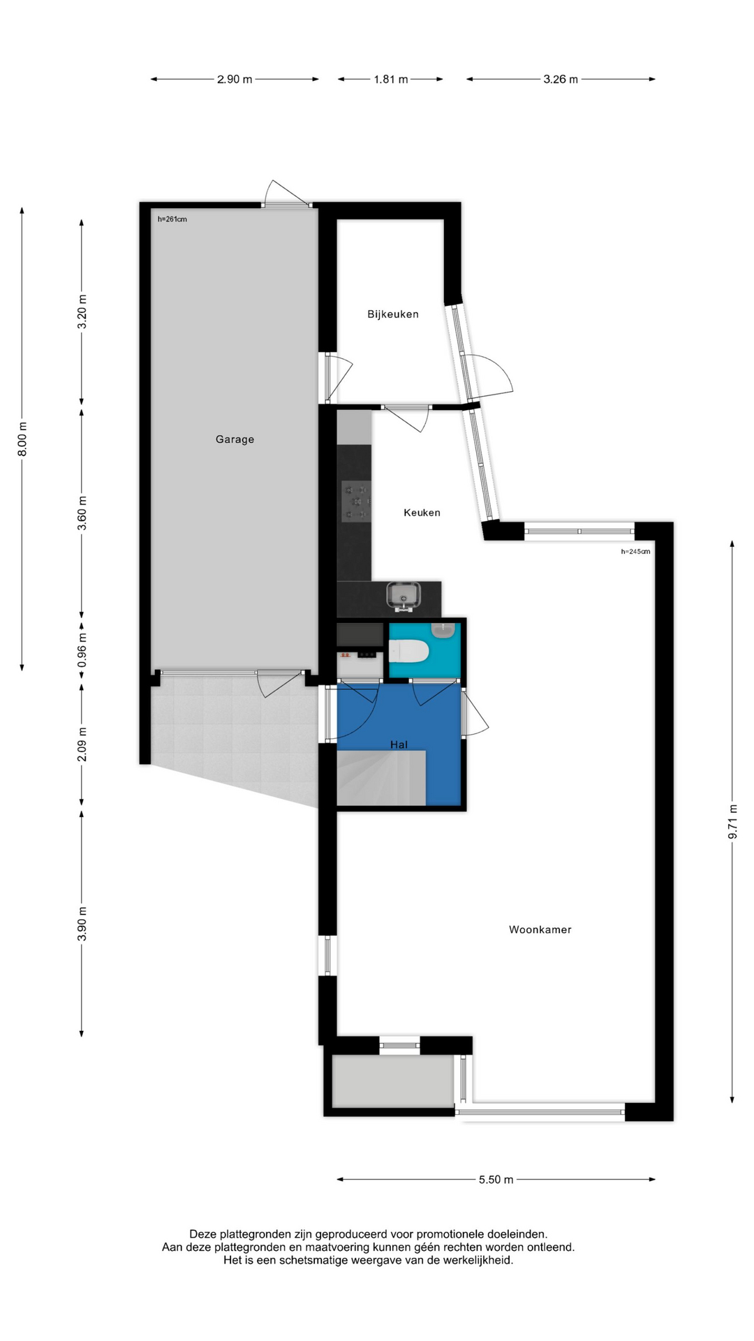
Ruim! Klassieke uitstraling! Zeer grote tuin! Vier slaapkamers! Zomaar enkele kenmerken die deze fantastische twee-onder-één kapwoning met garage karakteriseren. Maar wacht! Er is nog meer! Wat dacht u van een bijkeuken + verlengde garage? Of de locatie…. Gelegen aan een groenstrook in de populaire wijk Passewaaij kan met recht gesproken worden over een kindvriendelijke locatie. Voorzieningen als scholen, winkelcentrum en NS-station zijn op zeer korte afstand gelegen. De woonoppervlakte bedraagt 134 vierkante meter en het geheel is gelegen op een perceel van 269 vierkante meter met een heerlijk diepe tuin van 15 meter. Kortom: het ideale gezinshuis! Indeling: Begane grond: Overdekte entree, hal met toiletruimte, meterkast, garderobemogelijkheid en trapopgang naar de eerste verdieping. De woonkamer is straatgericht gesitueerd en ruim van opzet met meerdere indelingsmogelijkheden. Aan de tuinzijde is het eetgedeelte gelegen. Hier kan u die ruime eettafel plaatsen met 6 of zelfs 8 stoelen. Het centrum van het huis! De half open keuken is in een L-opstelling geplaatst en is voorzien van diverse apparatuur. In het verlengde van de keuken bevindt zich de bijkeuken met inpandige doorgang naar de verlengde (circa 23 vierkante meter) garage. De begane grond is belegd met een plavuizenvloer met vloerverwarming. Eerste verdieping: De overloop geeft toegang tot de drie uitstekend bemeten slaapkamers. Deze kamers zijn gelijkwaardig aan elkaar met betrekking tot de afmetingen. De badkamer is voorzien van een ligbad, separate douchecabine, vrijhangend toilet, wastafelmeubel en handdoekenradiator. Tweede verdieping: Via de vaste trap bereikt u de tweede verdieping. Hier bevinden zich reeds een vierde slaapkamer en een werkkamer. De c.v.-ketel en witgoedaansluitingen treft u hier in een separate ruimte. Tuin: Aan de voorzijde is er parkeergelegenheid op een eigen oprit. Via de woonkamer of vanuit de bijkeuken loopt u de tuin in.. Opvallend aspect is de ruime afmeting van de tuin. Garage: De garage is vanuit de bouw verlengd en meet liefst 8 meter diep. Naast het stallen van een auto kan deze garage uitstekend dienen als opslag voor allerhande spullen zoals fietsen of (tuin)gereedschappen. Bijzonderheden: - Zeer ruime twee-onder-één kapwoning met vele mogelijkheden; - Perfecte kindvriendelijke locatie aan een groenstrook in een rustige straat in de populaire wijk Passewaaij; - Ruime keuken; - Uitstekende slaapkamers; - Praktische bijkeuken; - Verlengde garage; - Zeer ruime tuin; - Oplevering in overleg
Locatie
Good to know
Alles wat je
moet weten!
Het kopen van een woning is spannend én bijzonder, maar er komt ook veel bij kijken. We zetten de belangrijkste stappen en begrippen voor je op een rij, zodat je goed voorbereid aan jouw zoektocht begint.
-
Wat is kosten koper?
Bij de meeste bestaande woningen betaal je 'kosten koper'. Dit betekent dat de koper de bijkomende kosten betaalt, zoals:
-
Overdrachtsbelasting (meestal 2%)
-
Notariskosten voor de leveringsakte
-
Kadasterkosten
Deze kosten komen dus bovenop de aankoopprijs van de woning.
-
-
Hypotheek regelen
Voordat je op huizenjacht gaat, is het verstandig om te weten hoeveel je kunt lenen. Een hypotheekadviseur of bank kijkt naar je inkomen, schulden en maandlasten. Zo weet je precies wat je budget is. Zodra je een woning op het oog hebt, kun je een hypotheekofferte aanvragen.
-
Aankoopmakelaar
Een aankoopmakelaar is jouw expert tijdens het kopen van een huis. Die helpt je bij het vinden van geschikte woningen, het voeren van onderhandelingen en het controleren van juridische documenten. Zo voorkom je verrassingen én betaal je niet te veel.
-
Taxatie
Voor het afsluiten van een hypotheek heb je vaak een gevalideerde taxatie nodig. Een onafhankelijke taxateur stelt een rapport op waarin de marktwaarde van de woning staat. Dit rapport is verplicht voor de meeste geldverstrekkers.
-
Notaris
De notaris stelt de leveringsakte (eigendomsoverdracht) en hypotheekakte op. Hier teken je officieel voor de woning. De notaris zorgt ervoor dat alles correct wordt vastgelegd en geregistreerd bij het Kadaster.