Grotebrugse Grintweg 113, Tiel
Vraagprijs: € 395.000,- k.k.
Lees en bekijk hieronder
alles over deze woning!
Omschrijving
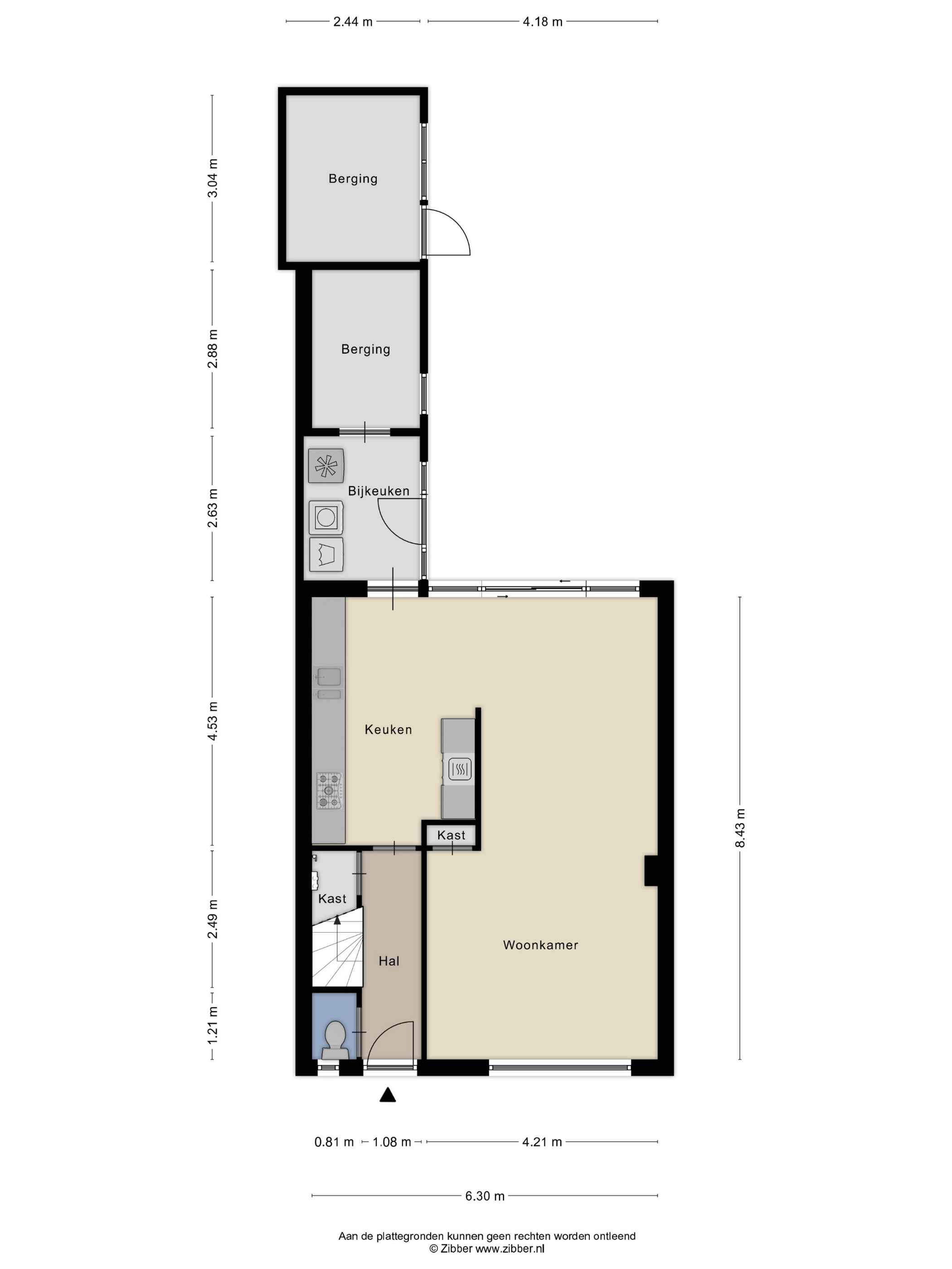
Centraal gelegen tussenwoning met VEEL PLUSPUNTEN! Op korte loop- en fietsafstand van de levendige binnenstad van Tiel mogen wij deze uitgebouwde eengezinswoning aanbieden. De ligging is ideaal: centraal en nabij winkels, scholen en diverse uitvalswegen. Binnen valt direct de ruime en aangenaam lichte woonkamer op, net als de moderne keuken die van alle gemakken is voorzien. Aan de achterzijde is de woning uitgebouwd en dankzij de openslaande deuren staat de woonkamer in direct contact met de tuin – perfect voor zonnige dagen en lange avonden buiten. De woning is volledig voorzien van onderhoudsarme kunststof kozijnen en beschikt over een royale dakkapel op de tweede verdieping. Ook aan duurzaamheid is gedacht: met maar liefst 12 zonnepanelen is het energieverbruik gunstig. Een woning met veel sterke punten! Maak snel een afspraak en ontdek of dit jouw volgende thuis wordt. INDELING Begane grond: Entree/hal met toiletruimte en kelderkast/meterkast, trapopgang naar boven. Vanuit de hal bereik je de keuken met aangrenzende ruimte voor het plaatsen van een grote eettafel. De moderne keuken is uitgevoerd in een dubbele opstelling en is voorzien van alle inbouwapparatuur, te weten een 5-pits gaskookplaat, RVS-afzuigschouw, vaatwasser, koel-vriescombinatie, combimagnetron, aparte oven en heel veel bergruimte. De perfecte keuken voor een kookliefhebber! Vanuit de keuken bereik je de bijkeuken met witgoedaansluitingen. Tevens kun je vanuit hier binnendoor naar een extra ruimte, fijn als bergruimte of zoals nu in gebruik als sporthonk aan huis. Praktisch voor dagelijks gebruik en in de wintermaanden ideaal als het buiten koud is of het regent! De royale woonkamer is straatgericht en heeft grote raampartijen aan de voorzijde waardoor het heerlijk licht is in huis. De woonkamer is aan de tuinzijde woningbreed uitgebouwd en voorzien van openslaande deuren. De gehele begane grondvloer is belegd met een fraaie pvc-vloer in een neutrale kleurstelling. Eerste verdieping: De overloop geeft toegang tot drie slaapkamers. De badkamer biedt een douchehoek en wastafelmeubel. Ook deze verdieping is voorzien van kunststof kozijnen met HR++ dubbele beglazing en is eveneens voorzien van een fraaie PVC-vloer. Tweede verdieping: Via een vaste trap bereik je de tweede verdieping. Hier is reeds een dakkapel aanwezig, deze is in 2022 aan de buitenzijde vernieuwd alsmede voorzien van kunststof kozijnen met HR++ beglazing. Deze verdieping is momenteel in gebruik als bergverdieping, maar ook uitstekend bruikbaar als slaapverdieping. Op deze verdieping is de Cv-installatie alsmede de omvormer van de zonnepanelen geplaatst. Tuin: De tuin is op het noordwesten gelegen (avondzon!) en heeft twee bergingen waarvan één binnendoor bereikbaar is vanuit de bijkeuken. Een praktische achterom is ook aanwezig. ALGEMEEN: - Goed onderhouden en uitgebouwde tussenwoning met compleet afwerkingsniveau; - Op loopafstand gelegen van alle dagelijkse voorzieningen en het stadscentrum van Tiel; - Voldoende parkeergelegenheid voor de deur; - Heerlijke lichte woonkamer met fraaie PVC-vloer; - Luxe woonkeuken voorzien van inbouwapparatuur; - Onderhoudsvriendelijk uitgevoerd met kunststof kozijnen en kunststof deuren; - Drie slaapkamers op de eerste verdieping, vierde kamer op de tweede verdieping; - Energielabel C, maar na opname van het label nog na-geïsoleerd en voorzien van 12 zonnepanelen; - Kindvriendelijke buurt (speeltuin aan overkant); - Gelegen aan een royale groenstrook met genoeg parkeermogelijkheden; - Bouwjaar: 1953; - Inhoud: 465 m³; - Woonoppervlak: 124 m²; - Perceeloppervlakte: 158 m² eigen grond; - Oplevering in overleg.
Plattegrond
Locatie
Good to know
Alles wat je
moet weten!
Het kopen van een woning is spannend én bijzonder, maar er komt ook veel bij kijken. We zetten de belangrijkste stappen en begrippen voor je op een rij, zodat je goed voorbereid aan jouw zoektocht begint.
-
Wat is kosten koper?
Bij de meeste bestaande woningen betaal je 'kosten koper'. Dit betekent dat de koper de bijkomende kosten betaalt, zoals:
-
Overdrachtsbelasting (meestal 2%)
-
Notariskosten voor de leveringsakte
-
Kadasterkosten
Deze kosten komen dus bovenop de aankoopprijs van de woning.
-
-
Hypotheek regelen
Voordat je op huizenjacht gaat, is het verstandig om te weten hoeveel je kunt lenen. Een hypotheekadviseur of bank kijkt naar je inkomen, schulden en maandlasten. Zo weet je precies wat je budget is. Zodra je een woning op het oog hebt, kun je een hypotheekofferte aanvragen.
-
Aankoopmakelaar
Een aankoopmakelaar is jouw expert tijdens het kopen van een huis. Die helpt je bij het vinden van geschikte woningen, het voeren van onderhandelingen en het controleren van juridische documenten. Zo voorkom je verrassingen én betaal je niet te veel.
-
Taxatie
Voor het afsluiten van een hypotheek heb je vaak een gevalideerde taxatie nodig. Een onafhankelijke taxateur stelt een rapport op waarin de marktwaarde van de woning staat. Dit rapport is verplicht voor de meeste geldverstrekkers.
-
Notaris
De notaris stelt de leveringsakte (eigendomsoverdracht) en hypotheekakte op. Hier teken je officieel voor de woning. De notaris zorgt ervoor dat alles correct wordt vastgelegd en geregistreerd bij het Kadaster.