Denariusstraat 3, Tiel
Vraagprijs: € 589.000,- k.k.
Lees en bekijk hieronder
alles over deze woning!
Omschrijving
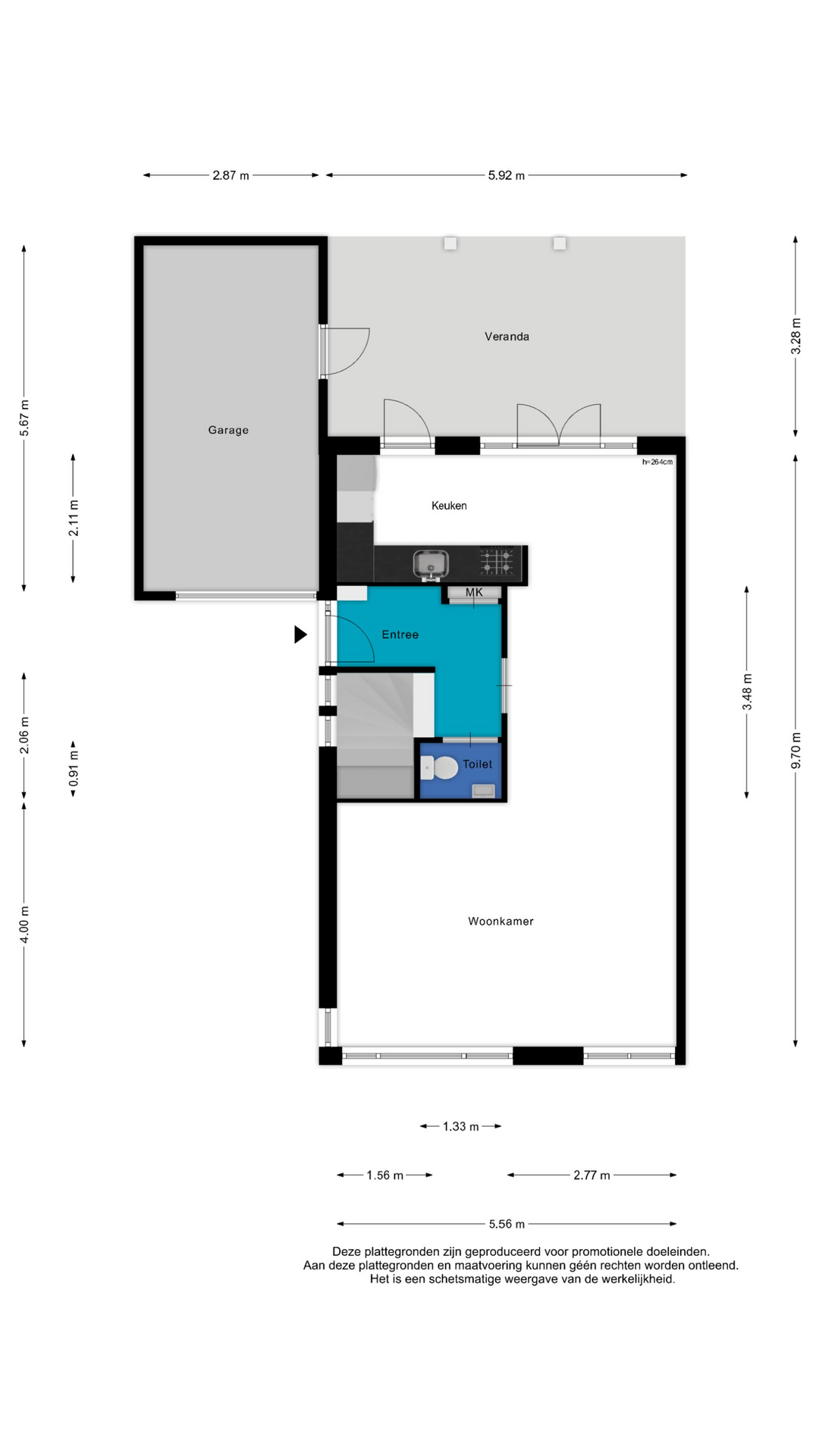
Luxe, instapklaar, toplocatie, airconditioning en energielabel A! Zomaar vijf kenmerken van deze tot in de puntjes afgewerkte en recent geheel gerenoveerde twee-onder-één kap woning gelegen in de populaire buurt 6 van de wijk Passewaaij. Graag laten wij u kennis maken met deze luxe woning tijdens een vrijblijvende bezichtiging waarbij wij u alle extra’s zullen tonen die het bewonen van deze woning tot een absoluut plezier maken. Naast alle luxe geniet u ook van een energielabel A. De ligging garandeert de nabijheid van alle voorzieningen zoals winkelcentrum, scholen, uitvalswegen en NS-station Tiel-Passewaaij. Vanuit de woning heeft een mooi uitzicht over het brede Geulpark. Indeling: Begane grond: Zijentree, hal met trapopgang, vernieuwde toiletruimte en meterkast. Bij het betreden van de woonkamer vallen meteen licht en sfeer op. In opdracht van huidige eigenaren zijn alle wand- en plafondafwerkingen geheel vernieuwd en strak afgewerkt naar hedendaagse smaak en ideeën. Grote raampartijen zorgen voor een fraai lichtinval. Aan de tuinzijde treft u de vernieuwde keukenopstelling die in een moderne kleurstelling in een L-vorm is geplaatst. Uiteraard is alle apparatuur aanwezig, te weten een inductie kookplaat, afzuigschouw, vaatwasser, koelvriescombinatie, combi-oven en een quooker. De begane grond wordt gecompleteerd door een hoogwaardige pvc-vloer in visgraatmotief met vloerverwarming en een lichtplan. Eerste verdieping: De overloop biedt toegang tot de drie slaapkamers. Allen voorzien van strakke vloer-, wand- en plafondafwerkingen. Ook zijn de slaapkamers voorzien van screens. De luxe badkamer is van alle comfort voorzien. Naast een riante inloopdouche met vloerdrain is deze ruimte uitgerust met een ligbad, dubbel wastafelmeubel, tweede vrijhangend toilet en handdoekenradiator. Fraai tegelwerk wordt gecombineerd met hoogwaardige materialen en afwerkingen. Geheel in stijl van het huis! Tweede verdieping: Via de vaste trap bereikt u de tweede verdieping. Hier bevindt zich een open ruimte met opstelplaats voor c.v.-ketel en witgoedaansluitingen. Hier kan ene vierde slaapkamer gerealiseerd worden. Tuin: De via openslaande deuren in de woonkamer te betreden tuin is keurig en onderhoudsvriendelijke aangelegd en voorzien van een fraaie veranda en extra berging. Garage: Uiteraard is de woning voorzien van een garage. De ideale ruimte voor het stallen van de auto of anders het opbergen van allerhande spullen zoals fietsen, gereedschappen en andere tuinbenodigdheden. Voor de garage is een grote oprit gelegen waar u twee auto’s kan plaatsen. Ideaal! Bijzonderheden: - Instapklare en luxe twee-onder-één kap woning op mooie locatie in kindvriendelijke buurt - Fraaie klassieke uitstraling - Alle voorzieningen op korte afstand gelegen - Luxe keukenopstelling met alle apparatuur - Complete vernieuwde badkamer met luxe materialen - Geheel voorzien van vloerverwarming en PVC-vloer op begane grond - Nieuw gestuukte plafonds en wanden - Onderhoudsvriendelijke en zonnige tuin met veranda - Keurig afgewerkte garage met ruime oprit - De ideale gezinswoning - Oplevering in overleg
Plattegrond
Locatie
Good to know
Alles wat je
moet weten!
Het kopen van een woning is spannend én bijzonder, maar er komt ook veel bij kijken. We zetten de belangrijkste stappen en begrippen voor je op een rij, zodat je goed voorbereid aan jouw zoektocht begint.
-
Wat is kosten koper?
Bij de meeste bestaande woningen betaal je 'kosten koper'. Dit betekent dat de koper de bijkomende kosten betaalt, zoals:
-
Overdrachtsbelasting (meestal 2%)
-
Notariskosten voor de leveringsakte
-
Kadasterkosten
Deze kosten komen dus bovenop de aankoopprijs van de woning.
-
-
Hypotheek regelen
Voordat je op huizenjacht gaat, is het verstandig om te weten hoeveel je kunt lenen. Een hypotheekadviseur of bank kijkt naar je inkomen, schulden en maandlasten. Zo weet je precies wat je budget is. Zodra je een woning op het oog hebt, kun je een hypotheekofferte aanvragen.
-
Aankoopmakelaar
Een aankoopmakelaar is jouw expert tijdens het kopen van een huis. Die helpt je bij het vinden van geschikte woningen, het voeren van onderhandelingen en het controleren van juridische documenten. Zo voorkom je verrassingen én betaal je niet te veel.
-
Taxatie
Voor het afsluiten van een hypotheek heb je vaak een gevalideerde taxatie nodig. Een onafhankelijke taxateur stelt een rapport op waarin de marktwaarde van de woning staat. Dit rapport is verplicht voor de meeste geldverstrekkers.
-
Notaris
De notaris stelt de leveringsakte (eigendomsoverdracht) en hypotheekakte op. Hier teken je officieel voor de woning. De notaris zorgt ervoor dat alles correct wordt vastgelegd en geregistreerd bij het Kadaster.