De Hennepe 213, Tiel
Vraagprijs: € 375.000,- k.k.
Lees en bekijk hieronder
alles over deze woning!
Omschrijving
Groter treft u ze niet! Deze royale hoekwoning aan de Hennepe beschikt over maar liefst 142m2 woonoppervlakte en ligt op een zeer geliefde locatie. Deze ideale gezinswoning heeft vier slaapkamers op de eerste verdieping en een ruime tweede verdieping biedt mogelijkheid tot nog twee slaapkamers. De garage op eigen perceel, met vele mogelijkheden, completeert het geheel. De woning staat op een ruim perceel en profiteert van een vrije ligging aan de achterzijde met uitzicht op groen. Dankzij de hoekligging geniet u hier van extra privacy. De locatie garandeert de nabijheid van vele voorzieningen zoals scholen, winkels en uitvalswegen. Ben u benieuwd naar de ruimte en mogelijkheden? Maakt u vrijblijvend een afspraak om deze woning te bezichtigen. Indeling: Entree, hal met meterkast, toiletruimte en trapopgang. De Z-vormige woonkamer is riant opgezet en biedt verschillende indelingsmogelijkheden. Aan de straatzijde is volop ruimte voor een comfortabele zithoek, waar u heerlijk van het daglicht kunt genieten. Aan de tuinzijde bevindt zich de keuken. Deze oppervlakte biedt meerdere indelingsmogelijkheden voor een nieuwe opstelling. Door de breedte van de woning is er ook plek voor een grote eettafel. Optie is om de achterzijde om te vormen tot een moderne woonkeuken. Eerste verdieping: De overloop biedt toegang tot maar liefst vier (!) slaapkamers. Alle kamers zijn voorzien van rechte wanden en daardoor praktisch in te richten. De badkamer bevindt zich in het midden van de verdieping en is uitgerust met een douchehoek, tweede toilet en een dubbel wastafelmeubel. Tweede verdieping: Via de vaste trap bereikt u de royale tweede verdieping. Deze verdieping biedt volop mogelijkheden. Hier kunt u twee extra slaapkamers, een werkruimte of hobbykamer realiseren. Tuin: De randligging zorgt voor een fijne tuin met veel privacy. Aan de achterzijde geniet u van een vrij groen uitzicht, wat een heerlijk gevoel van ruimte geeft. Garage en oprit: Bijzonder pluspunt van deze woning is de garage op het eigen perceel. Deze ruimte biedt tal van mogelijkheden. Uiteraard als opslag van spullen, maar wellicht is dit voor u de perfecte kans om wonen en werken te combineren? Voor de garage ligt de oprit met plaats voor twee auto’s op eigen terrein. En hoe fijn is het dat u daar een elektrisch laadpunt kan plaatsen. De garage is voorzien van een nieuwe roldeur. Bijzonderheden: - Zeer ruime hoekwoning met vele mogelijkheden op een fraaie vrije locatie. - Ruime en lichte woonkamer. - Mogelijkheid tot woonkeuken. - Vrije ligging aan achterzijde van de woning. - Vier slaapkamers op de eerste verdieping. - Mogelijkheid tot twee extra slaapkamers op de tweede verdieping. - Garage op eigen perceel met diverse gebruiksmogelijkheden. - Oprit voor twee auto’s op eigen terrein. - De ideale gezinswoning met groeimogelijkheden! - Koper dient rekening te houden met diverse gedateerde aspecten. - Oplevering in overleg.
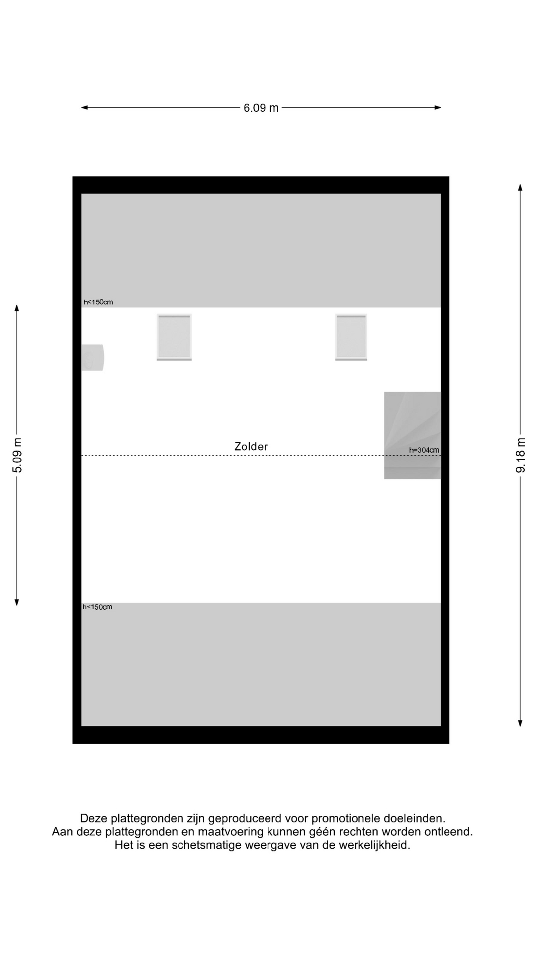
Plattegrond
Locatie
Good to know
Alles wat je
moet weten!
Het kopen van een woning is spannend én bijzonder, maar er komt ook veel bij kijken. We zetten de belangrijkste stappen en begrippen voor je op een rij, zodat je goed voorbereid aan jouw zoektocht begint.
-
Wat is kosten koper?
Bij de meeste bestaande woningen betaal je 'kosten koper'. Dit betekent dat de koper de bijkomende kosten betaalt, zoals:
-
Overdrachtsbelasting (meestal 2%)
-
Notariskosten voor de leveringsakte
-
Kadasterkosten
Deze kosten komen dus bovenop de aankoopprijs van de woning.
-
-
Hypotheek regelen
Voordat je op huizenjacht gaat, is het verstandig om te weten hoeveel je kunt lenen. Een hypotheekadviseur of bank kijkt naar je inkomen, schulden en maandlasten. Zo weet je precies wat je budget is. Zodra je een woning op het oog hebt, kun je een hypotheekofferte aanvragen.
-
Aankoopmakelaar
Een aankoopmakelaar is jouw expert tijdens het kopen van een huis. Die helpt je bij het vinden van geschikte woningen, het voeren van onderhandelingen en het controleren van juridische documenten. Zo voorkom je verrassingen én betaal je niet te veel.
-
Taxatie
Voor het afsluiten van een hypotheek heb je vaak een gevalideerde taxatie nodig. Een onafhankelijke taxateur stelt een rapport op waarin de marktwaarde van de woning staat. Dit rapport is verplicht voor de meeste geldverstrekkers.
-
Notaris
De notaris stelt de leveringsakte (eigendomsoverdracht) en hypotheekakte op. Hier teken je officieel voor de woning. De notaris zorgt ervoor dat alles correct wordt vastgelegd en geregistreerd bij het Kadaster.