Buitenlust 9, Tiel
Vraagprijs: € 375.000,- k.k.
Lees en bekijk hieronder
alles over deze woning!
Omschrijving
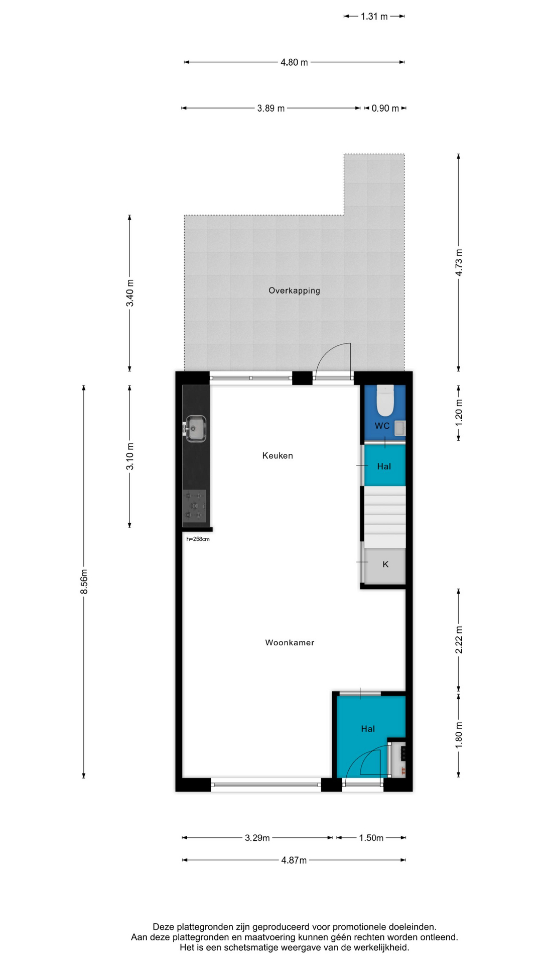
Comfortabel, energiezuinig & instapklaar wonen aan Buitenlust 9 in Tiel Stel je voor: thuiskomen in een rustige, groene straat, auto zó om de hoek parkeren, jas aan de kapstok en direct neerploffen op de bank. Geen grote klussen meer, lage energierekening en alle voorzieningen dichtbij. Dat is wonen aan Buitenlust 9. Deze woning is ideaal voor stellen die nét wat meer ruimte willen én voor gezinnen die een praktische, sfeervolle gezinswoning wensen. Waarom je deze woning absoluut wilt zien - Instapklaar & goed onderhouden – verhuizen, meubels neerzetten en wonen - Energielabel A + 10 zonnepanelen (2025) – zeer lage energiekosten - Volop parkeergelegenheid aan de zijkant van de straat - Vier volwaardige slaapkamers – ideaal als slaap-/werkkamers of hobbyruimte - Rustige, groene ligging zonder verkeer direct voor de deur – veilige speelomgeving. - Onderhoudsvriendelijke achtertuin op het noorden met veranda, elektra, berging én achterom, waar je kunt genieten van zowel de ochtend- als de avondzon. - Vernieuwde meterkast in de hal - Recent isolatiewerk: vloerisolatie (2024) en dakisolatie (2025) De woning ligt in de geliefde wijk Drumpt, met alle dagelijkse voorzieningen in de buurt: scholen, winkels, sportfaciliteiten, NS-station, ziekenhuis en uitvalswegen. Ideaal voor wie werk, gezin en ontspanning efficiënt wil combineren. INDELING: BEGANE GROND – licht, sfeer en praktische ruimte. Je komt binnen in de hal met de vernieuwde meterkast. Vanuit hier loop je door naar de lichte woonkamer aan de voorzijde, met grote ramen en een gezellige sfeer. De sfeervolle houtkachel zorgt op koude dagen voor extra warmte en knusheid – een echte blikvanger. Aan de achterzijde bevindt zich de open keuken, die prettig in verbinding staat met de woonkamer. De keuken is uitgerust met de benodigde voorzieningen en vormt een fijne plek om te koken en samen te zijn. De gehele begane grond is afgewerkt met een prachtige eikenhouten vloer, driemaal afgelakt en daarmee de komende 10 jaar onderhoudsvrij. Onder de trap bevindt zich een ruime trapkast: ideaal voor voorraad, huishoudelijke spullen of speelgoed. Precies die extra opbergruimte waar je in de praktijk blij mee bent. Via een tweede portaal bereik je het toilet en de trap naar boven. EERSTE VERDIEPING – drie fijne slaapkamers en een complete badkamer. Op de eerste verdieping vind je drie ruime slaapkamers, allemaal met rechte wanden — ideaal voor kasten, bureau of een tweepersoonsbed. De badkamer is netjes in gebruik en voorzien van: - Ligbad met douche - Wastafelmeubel - Tweede toilet Een complete, praktische ruimte waar je zó in kunt. TWEEDE VERDIEPING – volwaardige extra slaapkamer. Via de vaste trap kom je op de tweede verdieping. Hier is een ruime voorzolder met: - CV-installatie - Aansluitingen voor wasmachine en droger - Mechanische ventilatie - Extra bergvliering - ideaal voor koffers, kerstspullen, campingspullen en alles wat je niet dagelijks nodig hebt. Daarnaast bevindt zich hier de vierde slaapkamer: - Veel daglicht - Een gaaf hoog plafond (ca. 4,5 meter) - Extra na-isolatie voor een prettig leefklimaat - Mogelijkheid om twee kamers te creëren én een extra vliering te realiseren - Perfect als master bedroom, chillruimte, werkplek of hobbykamer. BUITEN – Zonnige tuin met privacy, veranda en praktische berging. De woning ligt aan een groenstrook in een rustige straat, waar je kunt genieten van rust, privacy én de zon. Door de ligging kun je zowel in de voor- als achtertuin heerlijk van de zon profiteren. De achtertuin biedt: - Veranda – ideaal voor lange avonden buiten - Elektra in de tuin – handig voor verlichting, heater of apparatuur - Vrijstaande berging – perfect voor fietsen, tuingereedschap of een kleine hobbyhoek - Achterom – praktisch met de fiets of voor het afval Ook de voortuin op het zonnige zuiden is netjes aangelegd en biedt een prettige eerste indruk. IN HET KORT: - Instapklare woning; - Energielabel A; - 10 zonnepanelen met micro-omvormers (2025); - Vernieuwde meterkast; - Kruipruimte-isolatie (2024) en dakisolatie (2025); - Vier slaapkamers; - Eikenhouten vloer begane grond, grenen vloer eerste verdieping; - Bouwjaar: 1980 - Woonoppervlak: ca. 101 m² - Inhoud: ca. 370 m³ - Perceel: 140 m² - Snelle oplevering mogelijk, aanvaarding in overleg Ben je op zoek naar een energiezuinige, sfeervolle en instapklare woning met voldoende ruimte en een fijne ligging? Dan zou Buitenlust 9 in Tiel zomaar precies kunnen zijn wat je zoekt!
Plattegrond
Locatie
Good to know
Alles wat je
moet weten!
Het kopen van een woning is spannend én bijzonder, maar er komt ook veel bij kijken. We zetten de belangrijkste stappen en begrippen voor je op een rij, zodat je goed voorbereid aan jouw zoektocht begint.
-
Wat is kosten koper?
Bij de meeste bestaande woningen betaal je 'kosten koper'. Dit betekent dat de koper de bijkomende kosten betaalt, zoals:
-
Overdrachtsbelasting (meestal 2%)
-
Notariskosten voor de leveringsakte
-
Kadasterkosten
Deze kosten komen dus bovenop de aankoopprijs van de woning.
-
-
Hypotheek regelen
Voordat je op huizenjacht gaat, is het verstandig om te weten hoeveel je kunt lenen. Een hypotheekadviseur of bank kijkt naar je inkomen, schulden en maandlasten. Zo weet je precies wat je budget is. Zodra je een woning op het oog hebt, kun je een hypotheekofferte aanvragen.
-
Aankoopmakelaar
Een aankoopmakelaar is jouw expert tijdens het kopen van een huis. Die helpt je bij het vinden van geschikte woningen, het voeren van onderhandelingen en het controleren van juridische documenten. Zo voorkom je verrassingen én betaal je niet te veel.
-
Taxatie
Voor het afsluiten van een hypotheek heb je vaak een gevalideerde taxatie nodig. Een onafhankelijke taxateur stelt een rapport op waarin de marktwaarde van de woning staat. Dit rapport is verplicht voor de meeste geldverstrekkers.
-
Notaris
De notaris stelt de leveringsakte (eigendomsoverdracht) en hypotheekakte op. Hier teken je officieel voor de woning. De notaris zorgt ervoor dat alles correct wordt vastgelegd en geregistreerd bij het Kadaster.