Alkmene 13, Tiel
Vraagprijs: € 489.500,- k.k.
Lees en bekijk hieronder
alles over deze woning!
Omschrijving
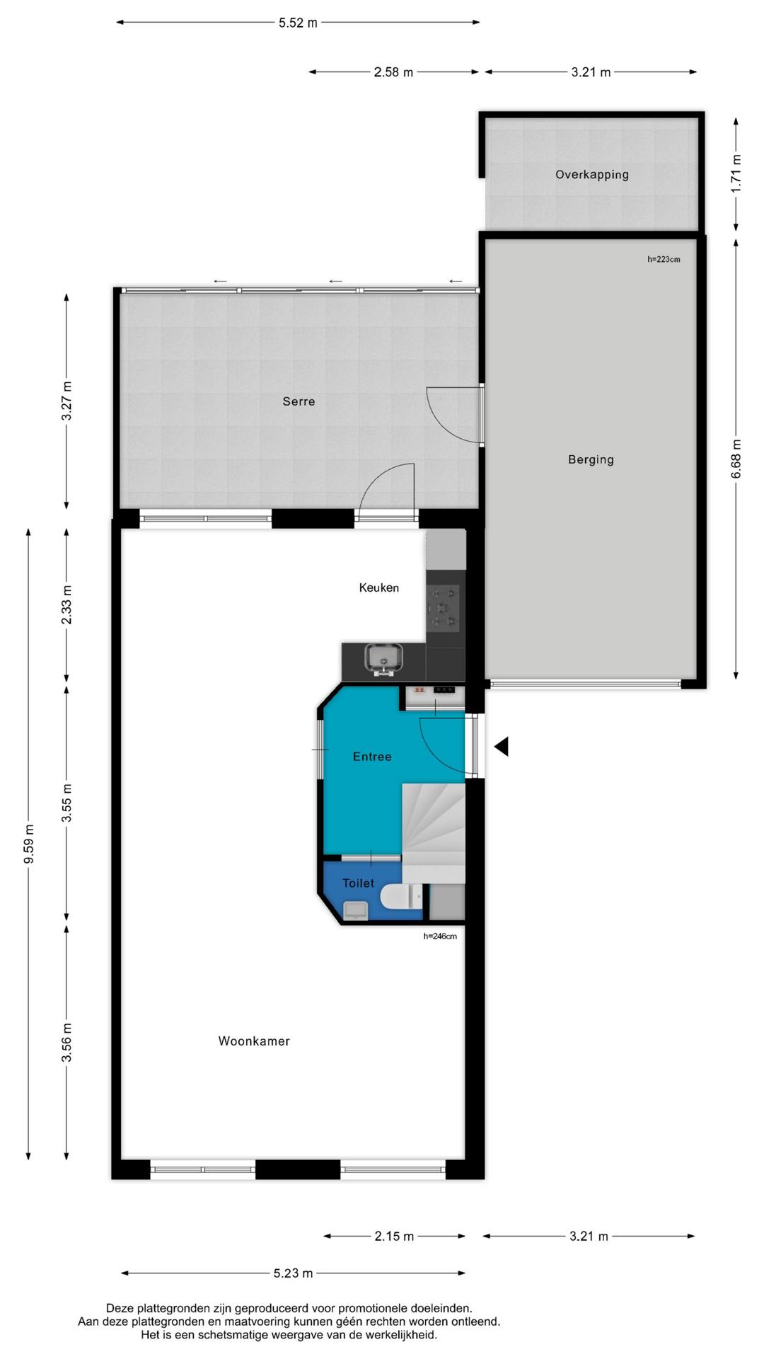
Heerlijke familiewoning op goede locatie! Aan de rand van de populaire wijk Passewaaij in Tiel mogen wij je deze verzorgde 2-onder-1-kapwoning met royale oprit en stenen garage aanbieden. De woning is gelegen aan een rustige, niet-doorgaande weg en is op loopafstand gelegen van alle dagelijkse voorzieningen die de wijk te bieden heeft. Zo zijn diverse basisscholen, supermarkt en NS-station binnen enkele minuten bereikbaar. Alkmene 13 is zo’n woning waar je direct een goed gevoel bij krijgt: uitstekend onderhouden, altijd keurig bewoond geweest en voorzien van een opvallend diepe en privacy-rijke achtertuin. De volledig af te sluiten veranda - en hierdoor droge toegang tot de naastgelegen garage - zijn overduidelijk extra pluspunten! De vloerafwerking in de woning behoeft wellicht modernisering, deze kunt u dan geheel naar eigen smaak en wens toevoegen. De keuken, badkamer en toiletruimte zijn daarentegen reeds vernieuwd en modern uitgevoerd. Tevens is de woning voorzien van airconditioning en leveren de 8 zonnepanelen (2023) een mooi rendement op. Met drie slaapkamers, een extra werk-/slaapkamer op zolder, vloerverwarming, goede staat van onderhoud én royale tuin met veranda is dit een ideale gezinswoning waar comfort en sfeer hand in hand gaan. INDELING: Begane grond: Entree/hal met meterkast, toiletruimte (zwevend toilet met fonteintje) en trapopgang naar de verdieping. Toegang tot de woonkamer. De zithoek bevindt zich aan de voorzijde van de woning en vanuit hier kijk je leuk de straat in. Grote raampartijen zorgen voor een prettige lichtinval en de haard biedt extra warmte en gezelligheid in de winter. De lichte tegelvloer met vloerverwarming zorgt voor extra comfort. De moderne keuken bevindt zich aan de tuinzijde. Deze is praktisch ingericht en voorzien van diverse inbouwapparatuur, waaronder een combi-oven, vaatwasser, koel-vriescombinatie, inductiekookplaat en vlakscherm afzuigkap. Het prachtige composiet werkblad maakt het geheel compleet. Vanuit de keuken is er toegang tot de veranda en vanuit daar naar de tuin en garage. Eerste verdieping: Overloop met toegang tot drie slaapkamers. De slaapkamer aan de voorzijde is voorzien van een elektrisch bedienbaar rolluik en is uitgerust met airconditioning. De badkamer is uitgevoerd met een fraaie vloertegel in donker taupe en is ingericht met een inloopdouche, modern wasmeubel, vloerverwarming en tweede vrijdragend toilet. Tweede verdieping: Via een vaste trap bereik je de tweede verdieping met aansluitingen voor wasmachine en droger, omvormer voor de zonnepanelen en de opstelling van de Cv-installatie (2023, eigendom). Deze ruimte kan uitstekend dienst doen als extra slaap- of werkruimte. Tuin: De fraai aangelegde achtertuin is een echte verrassing: royaal van formaat, gelegen op het noordoosten en voorzien van diverse beplanting, borders, overkapping voor het haardhout en royale veranda. Dankzij de gunstige ligging van de omringende bebouwing is er altijd een plekje in de zon of schaduw te vinden – een heerlijke tuin om tot laat van de zomeravonden te genieten. ALGEMEEN: * Gelegen op een rustige locatie in de gewilde wijk Passewaaij; * Op loopafstand van NS-station Passewaaij, diverse basisscholen, winkelcentrum en zorgvoorzieningen; * Eigen oprit met afsluitbaar hekwerk, garage en veranda; * Fraaie tuin met veel privacy; * Goed onderhouden en keurig bewoond; * Het buitenschilderwerk is in 2025 professioneel uitgevoerd; * Vloerverwarming op de begane grond en in de badkamer; * Airconditioning op de verdieping aanwezig; * Rolluik bij de hoofdslaapkamer; * Voorzien van vloer-, dak- en muurisolatie; * 8 zonnepanelen aanwezig (2023); * Verwarming en warm water middels Cv-installatie (2023, eigendom); * Energielabel A aanwezig; * Bouwjaar: 1992; * Woonoppervlak: 104 m²; * Inhoud: 378 m³; * Perceeloppervlak: 275 m² eigen grond; * Aanvaarding in overleg. Wordt Alkmene 13 jullie nieuwe woonadres? Maak snel een afspraak voor een bezichtiging en ervaar zelf het woongenot dat deze woning te bieden heeft.
Plattegrond
Locatie
Good to know
Alles wat je
moet weten!
Het kopen van een woning is spannend én bijzonder, maar er komt ook veel bij kijken. We zetten de belangrijkste stappen en begrippen voor je op een rij, zodat je goed voorbereid aan jouw zoektocht begint.
-
Wat is kosten koper?
Bij de meeste bestaande woningen betaal je 'kosten koper'. Dit betekent dat de koper de bijkomende kosten betaalt, zoals:
-
Overdrachtsbelasting (meestal 2%)
-
Notariskosten voor de leveringsakte
-
Kadasterkosten
Deze kosten komen dus bovenop de aankoopprijs van de woning.
-
-
Hypotheek regelen
Voordat je op huizenjacht gaat, is het verstandig om te weten hoeveel je kunt lenen. Een hypotheekadviseur of bank kijkt naar je inkomen, schulden en maandlasten. Zo weet je precies wat je budget is. Zodra je een woning op het oog hebt, kun je een hypotheekofferte aanvragen.
-
Aankoopmakelaar
Een aankoopmakelaar is jouw expert tijdens het kopen van een huis. Die helpt je bij het vinden van geschikte woningen, het voeren van onderhandelingen en het controleren van juridische documenten. Zo voorkom je verrassingen én betaal je niet te veel.
-
Taxatie
Voor het afsluiten van een hypotheek heb je vaak een gevalideerde taxatie nodig. Een onafhankelijke taxateur stelt een rapport op waarin de marktwaarde van de woning staat. Dit rapport is verplicht voor de meeste geldverstrekkers.
-
Notaris
De notaris stelt de leveringsakte (eigendomsoverdracht) en hypotheekakte op. Hier teken je officieel voor de woning. De notaris zorgt ervoor dat alles correct wordt vastgelegd en geregistreerd bij het Kadaster.